Látványterv

Észak-balatoni családi ház, melynek két szinten csodálatos panorámája van a Keszthelyi Öbölre.

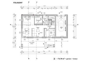
Alaprajz

A kétszintes balatoni panorámát nyújtó ingatlan kompakt kialakítása miatt ideális választás családoknak, fiatal pároknak, vagy akár idősebb nyugdíjasoknak.
A földszinti nappali és konyha kétoldali ablakozása olyan világos teret eredményez, amelybe minden érkező bele fog szeretni.
A hálók földszinti és emeleti elhelyezkedése alkalmassá teszi a családi házat arra, hogy akár egy szinten, vagy akár kettő szinten éljék a mindennapokat.

Építkezés

Az ingatlan építése 2023. tavaszán kezdődik, jelenleg a tervezési folyamatban tartunk.

Berendezés

Az ingatlant teljes berendezéssel szeretnénk értékesíteni, komplett lakberendezési tervek alapján, melyek a leendő tulajdonosokkal egyeztetve lesznek megvalósítva.

Átadás

A beruházás tervezett átadása 2024……